経堂赤堤通り|UR:20_5000|世田谷区桜上水

経堂赤堤通り

  • UR
  • 礼金ゼロ
経堂赤堤通り

トップ画像画像

▲クリックすると ( 全 30 件 ) の画像が拡大できます。

所在地 東京都世田谷区桜上水1-1
交通 小田急小田原線 経堂駅 徒歩10
東急世田谷線 松原駅 徒歩11
京王線 桜上水駅 徒歩15
管理 29年~32年 総戸数 351 戸
月額家賃 95,600~207,100円 敷金 2ヶ月
共益費 5,150円 礼金 0ヶ月
仲介料 0ヶ月
駐車場 平面 空き台数:1台 料金:19,140円機械 空き台数:2台 料金:19,140円
英語サイト Kyodo Akatsutsumi Dori
審査基準(収入制限)
建物の制度・特徴・設備
  • BS
  • 光配線
  • CATV
  • エレベーター
  • 防犯カメラ
  • 宅配ボックス
部屋の制度・特徴・設備
  • エアコン
  • ドロップインコンロ
  • 自動お湯張り機能
  • モニター付インターホン
  • 独立キッチン
  • BSアンテナ
  • バス・トイレ別
  • 追焚機能
  • バルコニー
  • トランクルーム

※ 実際の設備は部屋によって異なります

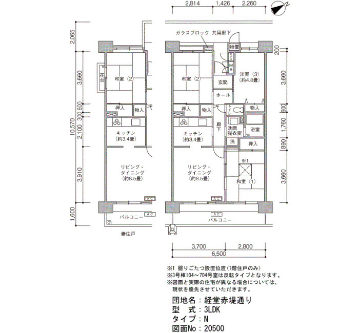
間取り 床面積 月額家賃 戸数
1DK 31〜44 ¥95,200~144,400 27
1LDK 54〜57 ¥152,000~168,500 16
2DK 44〜45 ¥133,100~145,200 56
2LDK 57〜66 ¥165,300~201,800 88
3DK 57〜65 ¥165,900~194,600 54
3LDK 66〜68 ¥179,600~206,200 92

経堂赤堤通りのおすすめポイント

♪経堂赤堤通りのおすすめポイント♪
◎小田急小田原線 経堂駅より徒歩約10分
◎急行利用時には新宿まで約11分、渋谷へも下北沢乗り換えで、約10分
◎駅周辺にはスーパーや商店街があり毎日のお買い物にも便利
◎物件周辺は緑も多く、保育園や公園も近く、家族世帯にも最適な環境

●〇●担当者のコメント●〇●





◇◆物件情報◆◇
●管理開始/平成5年10月・平成7年10月
●住居表示/〒156-0045 東京都世田谷区桜上水一丁目1番○号棟-○○○号室
●交  通/小田急小田原線「経堂」駅下車、徒歩10分
※住棟により、所要時間が異なる場合があります。
●戸  数/351戸
●建物構造/鉄筋コンクリート造
1~3号棟 : 7階建(一部4~6階)
4号棟 : 8階建(一部4~7階)
5号棟 : 7階建(一部4~6階)
6号棟 : 7階建(一部5・6階)
7号棟 : 4階建
8号棟 : 4階建(一部3階)
●駐 車 場/平面式・機械式

経堂赤堤通りについて

【暮らしのご案内】

<公共施設>
●区役所・出張所 世田谷区役所 南東方約 2.3km 世田谷区世田谷4-21-27 03-5432-1111
松沢まちづくりセンター 北東方約 940m 世田谷区赤堤5-31-5 03-3323-8391
●警察署 成城警察署 東方約 340m 世田谷区千歳台3-19-1 03-3482-0110
桜上水交番 世田谷区桜上水4-24-1 (成城警察署より転送)
●消防署 世田谷消防署 上北沢出張所 北西方約 690m 世田谷区上北沢1-14-2 03-3304-0119
●郵便局 千歳郵便局 南西方約 900m 世田谷区経堂1-40-1 03-3426-4109
●保健所 北沢保健福祉センター 東方約 1.8km 世田谷区松原6-3-5 03-3323-9909

<教育施設>
●保育園 私立経堂保育園 南西方約 1.3km 世田谷区経堂4-13-10 03-3427-4020
私立早苗保育園 北方約 100m 世田谷区桜上水3-18-12 03-3303-7556
ポピンズナーサリースクール経堂(認証保育所)南西方約 900m 世田谷区赤堤3-32-5 03-5329-2177
●幼稚園 私立マダレナ・カノッサ幼稚園 西方約 500m 世田谷区桜上水2-5-1 03-3304-5281
●小学校 区立経堂小学校 南西方約 390m 世田谷区桜上水1-23-3 03-3420-3278
●中学校 区立緑丘中学校 北方約 510m 世田谷区桜上水3-19-12 03-3303-7332

<医療施設>
●病院 世田谷中央病院(内・小・外・整外・泌・眼・リハ・他)
「世田谷」駅南方約 300m
児玉経堂病院(内・呼・消・循) 南方約 520m
●医院 大森クリニック(内・皮) 北西方約 190m
菊池産婦人科(産・婦) 南方約 230m

<利便施設>
●スーパーマーケット Odakyu OX 経堂店 「経堂」駅前
ピーコックストア 経堂店 「経堂」駅前
●金融機関 ※「経堂」駅及び「桜上水」駅周辺に商店街や銀行(ATM)があります。

<電気・ガス・水道>
●電気 電気の使用開始までに、ご希望の電力会社にお申込みください。
●ガス ガスの使用開始までに、ご希望のガス会社にお申込みください。
●水道 東京都水道局 お客さまセンター 03-5326-1100

<駐車場の管理・運営>
東京南住まいセンター 03-5427-5960

<管理サービス事務所>
経堂赤堤通り 管理サービス事務所 03-3303-2641


【特記事項】

■セキュリティ対策について
団地内に防犯カメラを設置しています。

■駐車場について
当団地に有料駐車場を設置しています。駐車場の種類により、駐車可能な車両の大きさが制限される場合があります。

■カーシェアリングサービスについて
当団地の駐車場にカーシェアリングを設置しています。ご利用には、カーシェアリング提供事業者への利用登録のほか、別途、利用料(この利用料には利用登録手数料等は含まれません)をお支払いください。また、事業者の都合により、設置台数の変更やサービスを終了する場合があります。

■ガス設備について
●ガス種類(グループ) 13A
●ガスコンセントとスリーブが設置されている場合、市販のガスFF暖房機を設置できます。

■給湯について
キッチン、浴室、洗面化粧台、洗濯機置場に給湯ができます(給湯器能力16号相当)。

■電気設備について
最大契約容量は40アンペアまで増量可能です(住宅用分電盤等の取替え工事が必要となる場合があります)。契約容量の変更にあたっては、UR都市機構への届出が必要です。

■電話回線について
電話回線は2回線です。使用にあたっては、居住者にて通信事業者にお申込みください。費用(配線工事費用含む)はすべて居住者負担となります。

■携帯電話について
携帯電話は通信各事業者、それぞれの通信システムで運用されております。したがって、事業者が設置する通信中継設備の位置及び電波状況によっては、団地内または建物内での使用において通信が不能となる場合があります。

■インターネット設備について
当団地では、光配線(FTTH)、VDSL、CATVによるインターネットサービス(有料)をご利用になれます。詳しくは、下記サービス提供事業者へお問い合わせください。
◎FTTH : 東日本電信電話(株) 
◎VDSL : 東日本電信電話(株)・KDDI(株) 
◎CATV : CATV事業者

■テレビ設備について
●当団地にはCATV設備が導入されています。NHK受信料を除く、一般放送の視聴は無料です。また、別途契約により、多チャンネルサービス(有料)もご利用いただけます。詳しくは、J:COMせたまちへお問い合わせください。
●当団地にはBSアンテナが設置されています。ご視聴にあたっては専用チューナーが必要です。なお、衛星放送を受信するには、各放送事業者と受信契約が必要となる場合があります(一部受信できないチャンネルもあります)。

■エアコンについて
●エアコン専用コンセント・スリーブ・取り付け金具を新たに設置する場合、及び既設置の専用コンセントの電圧を200ボルトに変更する場合は、UR都市機構の承諾が必要です(住宅によっては承諾できない場合があります)。費用は居住者の負担となります。
●エアコンが設置されている場合、設置位置(室内・室外機)については、機器周辺の状況により間取図と異なる場合があります。なお、エアコンの能力は、東京地域の一般的な気象条件をもとに選定されており、気象条件によっては設定する室温に到達できない場合があります。

■温水コンセントについて
温水コンセントが設置されている場合、市販の移動型暖房放熱器を接続することで、暖房ができます。コンセント設置位置は間取図と異なることがあります。

■暖房放熱器について
固定型暖房放熱器が設置されている場合(一部の1階住宅)、機器の修理・取替えは居住者負担となります。取替えに際しては、UR都市機構の承諾が必要です。設置位置・数は間取図と異なることがあります。

■現況優先
間取図と現況に相違ある場合は、現況優先となります。間取図記載の寸法は壁芯による計測値となりますので、内法寸法と異なります。また、住宅により内装等の仕様や設備が異なる場合がありますので、必ず住宅内部をご確認ください。 

備考

・EV充電サービス(団地内共用):団地内駐車場の一部にEV充電設備が設置された区画があり、団地内駐車場をご契約の方はどなたでも利用できます。※EV充電サービス提供事業者との利用契約が別途必要です。

『経堂赤堤通り』へのお問い合わせはコチラ

UR/JKK コンシェルジュ本店

物件Map

UR・JKKコンシェルジュでご成約いただいたお部屋一覧

階数 / 階建 間取 床面積
間取り ご成約済 ***** 3LDK 68㎡ 詳細
間取り ご成約済 ***** 1DK 31㎡ 詳細
間取り ご成約済 ***** 2LDK 66㎡ 詳細
間取り ご成約済 ***** 2LDK 57㎡ 詳細
間取り ご成約済 ***** 2LDK 57㎡ 詳細
間取り ご成約済 ***** 2LDK 64㎡ 詳細
間取り ご成約済 ***** 2LDK 64㎡ 詳細
間取り ご成約済 ***** 3LDK 66㎡ 詳細
間取り ご成約済 ***** 3LDK 66㎡ 詳細
間取り ご成約済 ***** 1LDK 54㎡ 詳細
間取り ご成約済 ***** 2LDK 57㎡ 詳細
間取り ご成約済 ***** 3LDK 66㎡ 詳細
間取り ご成約済 ***** 1LDK 54㎡ 詳細
間取り ご成約済 ***** 2LDK 66㎡ 詳細
間取り ご成約済 ***** 2LDK 64㎡ 詳細
間取り ご成約済 ***** 3LDK 66㎡ 詳細
間取り ご成約済 ***** 3DK 57㎡ 詳細
間取り ご成約済 ***** 3LDK 66㎡ 詳細
間取り ご成約済 ***** 3LDK 66㎡ 詳細
間取り ご成約済 ***** 3LDK 66㎡ 詳細
間取り ご成約済 ***** 3LDK 66㎡ 詳細
間取り ご成約済 ***** 2LDK 66㎡ 詳細